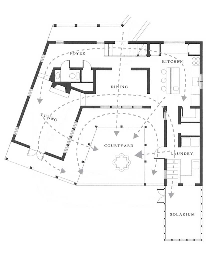
Create interior and exterior connectivity…
Indoor-Outdoor Ambiguity
Circulation Network
Layered Zones
Passageway View
.
DOT FROM pattern-cluster-diagram
See more Patterns Of Scale